Vuokrattavat toimitilat
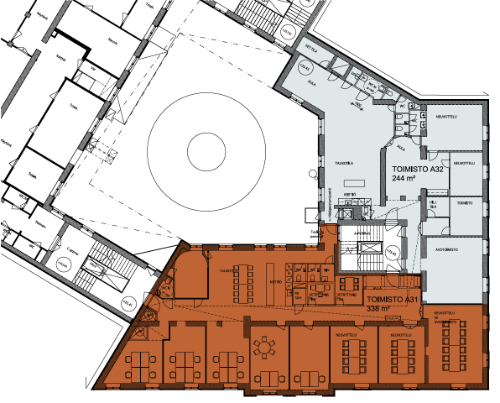
Glorian vuokrattavat toimitilat sijoittuvat kiinteistökorttelin Yrjönkadun ja Ratakadun puoleisille sivuille. Kokonaan uudistettujen toimistojen pinta-alat alkavat noin 250 neliöstä ja ulottuvat reiluun 700 neliömetriin asti. Kaikki pohjaratkaisut ovat monipuolisesti räätälöitävissä vuokraajan tarpeiden mukaan.
Ajatonta eleganssia ja modernia toiminnallisuutta
Glorian kaikille tiloille on leimallista arvokkuutta henkivä tunnelma. Kiviseinät ovat jykevät, huonekorkeudet suuria ja ikkunalaudat ajalle tyypillisesti ihastuttavan leveitä. Monet Glorian valoisista vuokratiloista kattavat koko kerroksen, mikä tuo miellyttävää yksityisyyttä vuokralaisyrityksen arkeen.
Tarjolla on lisäksi tilaratkaisuja, joissa yksi kerros on jaettu tasavertaisesti kahdelle käyttäjälle. Näissä tiloissa on kussakin omat sisäänkäyntinsä.
Glorian talotekniikka on uudistettu kokonaan, mikä nostaa myös kiinteistön energiatehokkuuden uudelle tasolle. Glorialle haetaan parhaillaan LEED-sertifiointia tasolla Platinum.
Luksusluokan ullakkotoimisto juuri teidän tarpeisiin?
Glorian jugend-henkiseen torniin sijoittuva ullakkotoimisto on tasokkaiden tilojen joukossa täysin oma lukunsa: se on saumatonta toiminnallisuutta korostava kahden kerroksen kokonaisuus, joka huokuu valoisaa ateljeetunnelmaa ja historian siipien havinaa. Uniikin ullakkotoimiston ikkunoista avautuu fantastiset maisemat kantakaupungin kattojen ylle.
Glorian pohjaratkaisut ovat joustavia, eli ne tarjoavat lukemattomia mahdollisuuksia yksilölliselle räätälöinnille. Esimerkiksi sisustuksen pinnat ja kevyistä elementeistä toteutetut tilarajaukset voidaan toteuttaa täsmälleen vuokraajan toiveiden ja tarpeiden mukaisesti. Kysy lisää mahdollisuuksista!
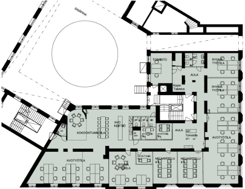
Räätälöitävät toimitilat

A7+A8
Koko: 722 m2
Kerros: 7.-8.
Erityistä: 7. ja 8. kerros vuokrataan yhtenä kokonaisuutena. Kerrosten välillä on sisäporrasyhteys. 7. krs on 428 m2, 8. krs noin 294 m2.
Kerro tilatarpeistasi ja -toiveistasi
Hannu Tammia
Jone Riiheläinen
Me palvelemme
Haluatko kuulla lisää Glorian suunnitelmista tai tulla kenties paikan päälle tutustumaan tarkemmin jo nyt? Soita meille, niin sovitaan aika yksityisesittelylle. Voit lähettää meille ohesta myös viestin, niin olemme sinuun yhteydessä pikimmiten. Aloitetaan suunnittelu yhdessä.
Tutustu sisustusvalikoimaan





